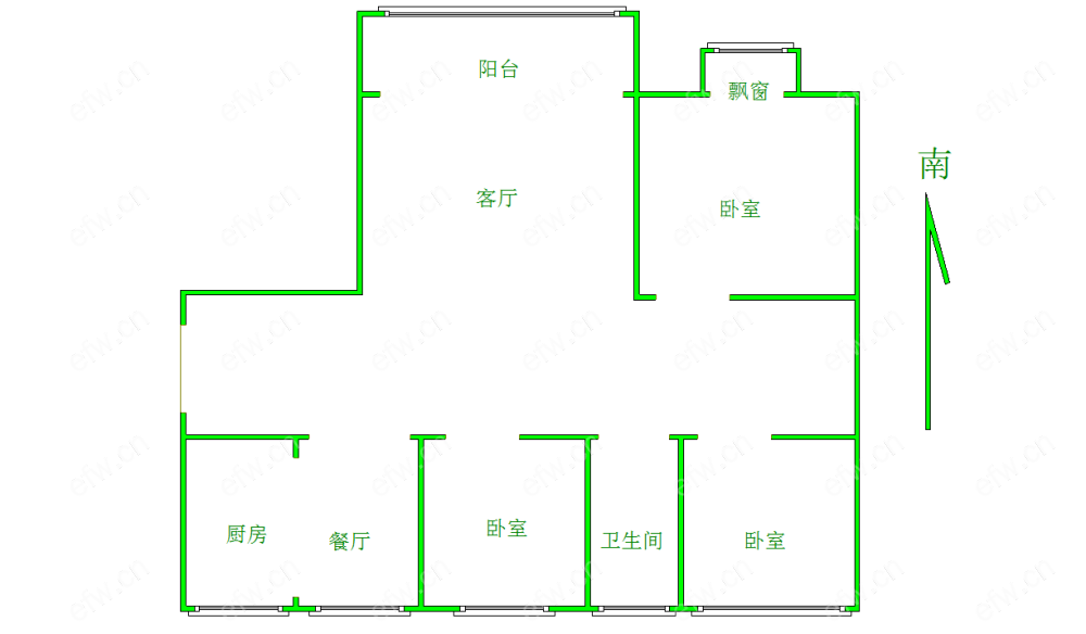
华夏泉绅(永利花苑) 3室2厅
150.00
万
总价
3
室
2
厅
户型
135.00 m²
建筑面积
预约看房,方便带看
经纪人1对1带看服务
单价:
11111元/m²
楼层:
低层/29层
朝向:
南
电梯:
有
装修:
简装
年代:
2000年
区域:
惠山区 - 西漳
地址:
惠山区北环南路(西漳社区)
首付预算:
30.00万



















