诚信出售拎包入住看房好晚上
198.00
万
总价
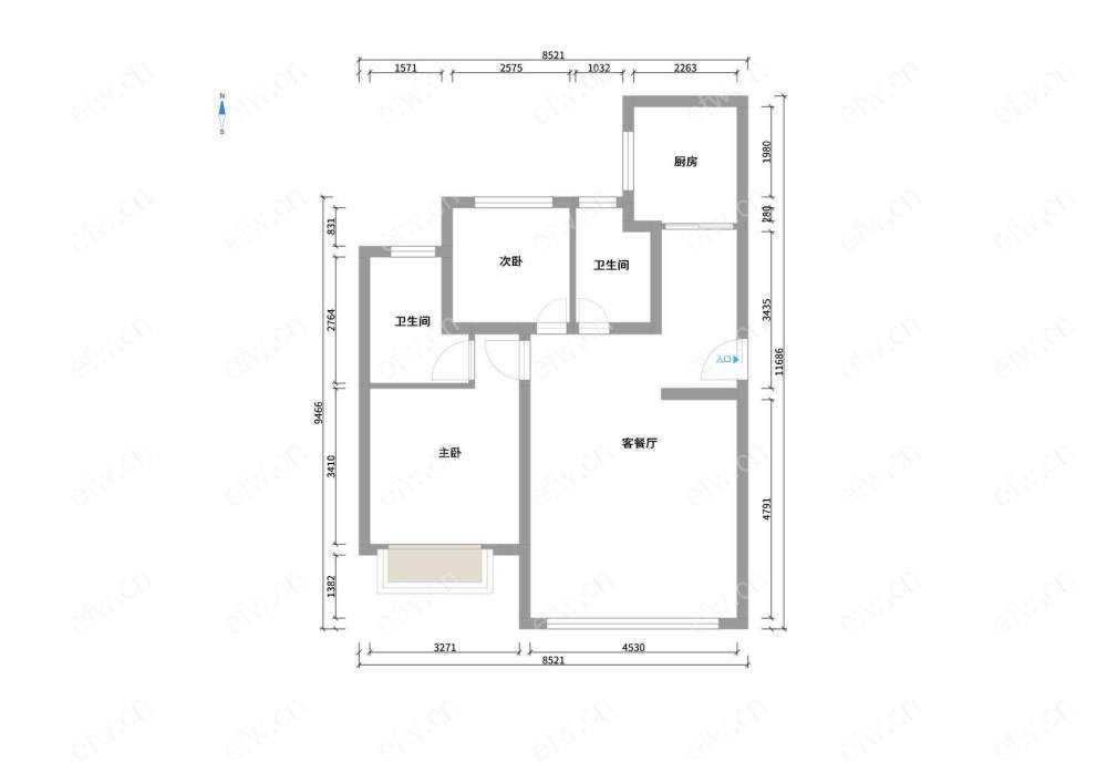
3
室
2
厅
户型
90.00 m²
建筑面积
预约看房,方便带看
经纪人1对1带看服务
单价:
22000元/m²
楼层:
低层/22层
朝向:
南
电梯:
有
装修:
精装
年代:
2023年
区域:
锡山区 - 东亭
地址:
友谊路,近新明路
首付预算:
39.60万
