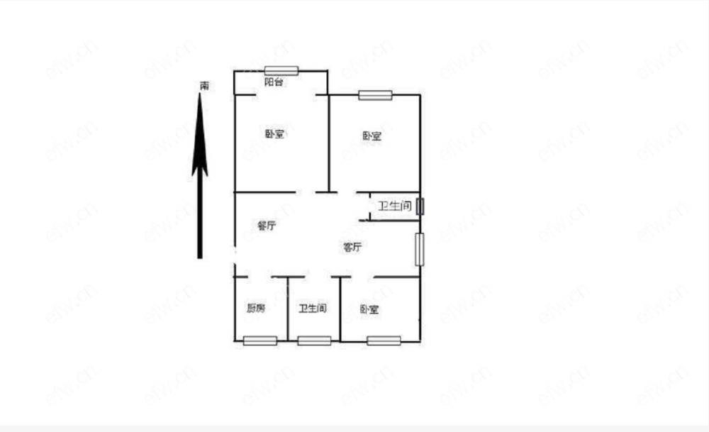
永德苑(金钩桥街1、3、5、7号) 3室2厅
383.00
万
总价
3
室
2
厅
户型
157.35 m²
建筑面积
预约看房,方便带看
经纪人1对1带看服务
单价:
24341元/m²
楼层:
中高层/20层
朝向:
南
电梯:
有
装修:
精装
年代:
2000年
区域:
南长区 - 南禅寺
地址:
南长区家乐福附近,永乐路与金钩桥街交...
首付预算:
76.60万

















